民泊どまいま adalah penginapan yang terletak di Miura, 43km dari Sankeien dan 45km dari Menara Marin Yokohama. Ia terletak 32km dari Kuil Tsurugaoka Hachimangu dan mempunyai WiFi percuma dan tempat parking peribadi percuma.
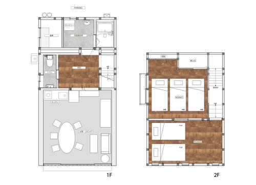
Apartmen berhawa-dingin ini mempunyai 2 bilik tidur, ruang tamu, dapur yang serba lengkap dengan peti sejuk, dan 1 bilik mandi dengan tab mandi dan kelengkapan dandanan diri percuma. Tuala dan linen katil tersedia di apartmen ini.
Lapangan Terbang Tokyo Haneda adalah 62km dari tempat penginapan.
Booking.com telah berikan penilaian untuk penginapan ini 3 daripada 5 berdasarkan faktor seperti kemudahan, saiz, lokasi dan perkhidmatan yang disediakan.
Persekitaran tempat penginapan
Info lanjut
民泊どまいま mengambil permintaan khas - Masukkan permintaan pada langkah seterusnya!
Daftar masuk
Dari 3:00 PTG hingga 11:00 PTG
Anda perlu maklumkan waktu ketibaan anda kepada pihak penginapan terlebih dahulu.
Daftar keluar
Hingga 11:00 PG
Pembatalan / bayaran pendahuluan
Polisi pembatalan dan prabayaran berbeza bergantung pada jenis penginapan. Sila masukkan tarikh penginapan anda dan semak syarat bagi pilihan yang anda perlukan.
Kanak-kanak dan katil
Polisi kanak-kanak
Kanak-kanak semua peringkat usia dialu-alukan.
Untuk lihat harga dan maklumat penghunian yang tepat, sila sertakan bilangan kanak-kanak dalam kumpulan anda dan umur mereka pada carian anda.
Polisi katil bayi dan katil tambahan
Katil bayi dan katil tambahan tidak tersedia di penginapan ini.
Tiada had umur
Tidak ada syarat umur untuk daftar masuk
Polisi merokok
Merokok tidak dibenarkan.
Parti
Parti/acara tidak dibenarkan
Haiwan peliharaan
Haiwan kesayangan tidak dibenarkan.
Maklumat lanjut
Maklumat penting bagi tetamu di penginapan ini
Parti 'bachelorette', parti orang bujang atau yang serupa tidak dibenarkan di penginapan ini.
Kami ada lebih daripada 70 juta reviu penginapan dan semuanya adalah daripada tetamu sebenar yang sah.
Bagaimana tetamu dapat menulis ulasan?
1
Ia bermula dengan satu tempahan
Ia bermula dengan satu tempahan
Satu-satunya cara untuk memberi ulasan adalah untuk membuat tempahan di laman kami dahulu. Dari situ, kami dapat memastikan bahawa ulasan ditulis oleh tetamu sebenar yang telah menginap di tempat penginapan itu.
2
Diikuti pula dengan penginapan
Diikuti pula dengan penginapan
Tetamu kami akan ke tempat penginapan dan menilai beberapa faktor seperti - adakah biliknya bersih? adakah kakitangan di sana mesra?
3
Akhirnya, tetamu memberi ulasan
Akhirnya, tetamu memberi ulasan
Selepas penginapan mereka, tetamu akan berkongsi tentang pengalaman mereka. Kami meneliti setiap ulasan dan kesahihannya sebelum menerbitkan ulasan di laman Booking.com.
Jika anda telah buat tempahan dengan kami dan ingin berikan reviu, sila log masuk.